0
Zum Inhalt springen
Rüschlikon
Mehrfamilienhaus
Bachelor
Loggia
Salvia
Shop
Produktionsgebäude
Agro
Café mit Boutique
Logistikgebäude
Kantine
Werk
Presse
Über Uns
FUCHS+FUCHS AG
Rüschlikon
Mehrfamilienhaus
Bachelor
Loggia
Salvia
Shop
Produktionsgebäude
Agro
Café mit Boutique
Logistikgebäude
Kantine
Werk
Presse
Über Uns
FUCHS+FUCHS AG
Ordner: Projekte
Zurück
Rüschlikon
Mehrfamilienhaus
Bachelor
Loggia
Salvia
Shop
Produktionsgebäude
Agro
Café mit Boutique
Logistikgebäude
Kantine
Werk
Presse
Über Uns

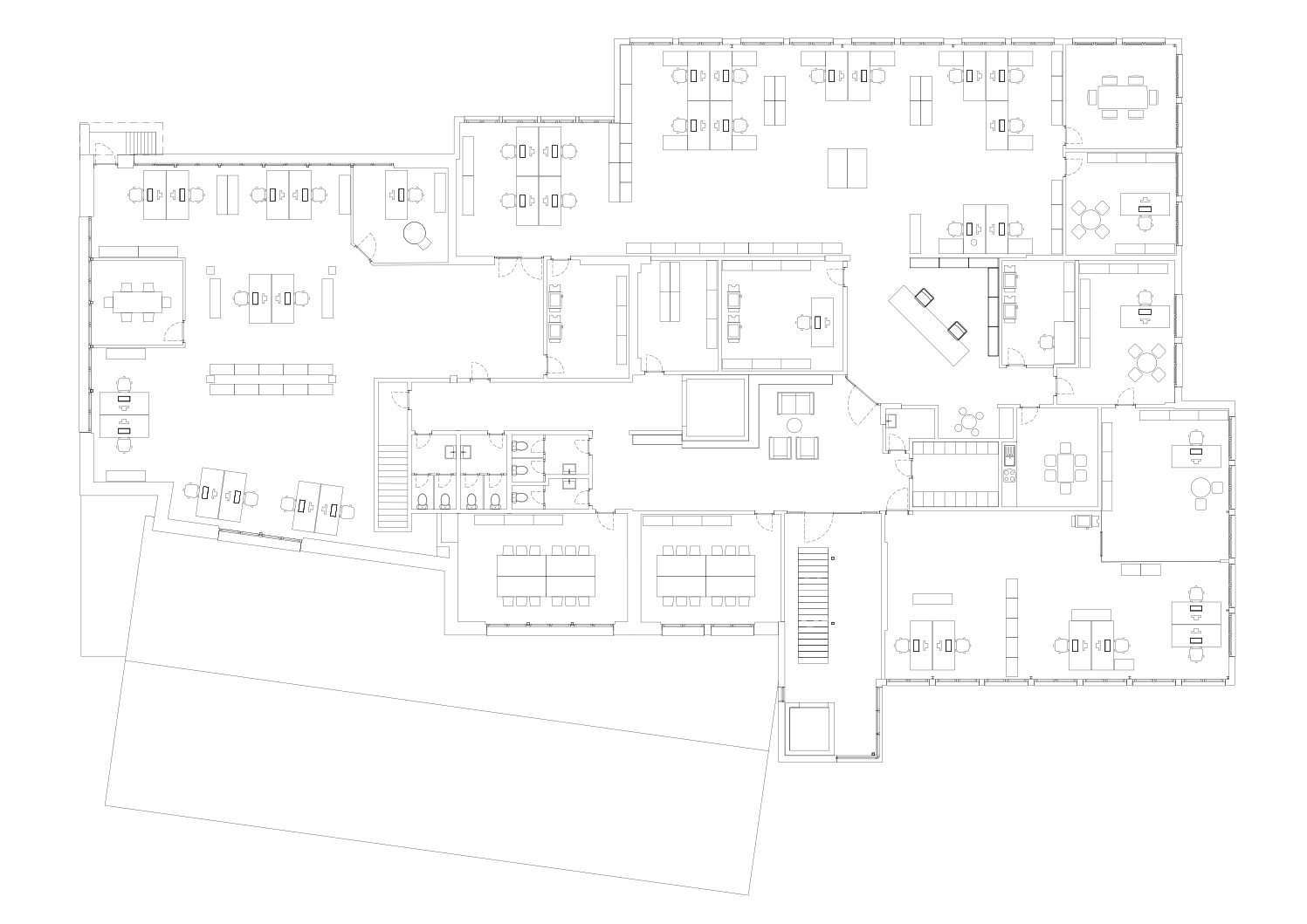
AUFSTOCKUNG BÜROTRAKT

Auftrag: Aufstockung Bürotrakt Produkte Elektroinstallationen
Ort: Hunzenschwil
Auftraggeber: Agro
Projekt: 2019
Ausführung: 2021
Volumen: 3’400 m3 (GV SIA 416)
Fläche: 750 m2 (GF SIA 416)

04__AGRO GRUNDRISS OG2.png Im Vollbildmodus anzeigen
03__AGRO GRUNDRISS OG1.png Im Vollbildmodus anzeigen
05__FASSADE NEUBAU.png Im Vollbildmodus anzeigen
04__AGRO GRUNDRISS OG2.png
03__AGRO GRUNDRISS OG1.png
05__FASSADE NEUBAU.png
 
06__Bild_vorher-nachher.jpg
07__AGRO FASSADE 02 ps.jpg
08__AGRO FASSADE 01 ps.jpg
11__EINBAUMÖBEL ANSICHTEN.jpg
09__BILD_01 Möbel Foyer.jpg
10__BILD_03 Möbel Foyer_gross.jpg

KONTAKT

FUCHS + FUCHS AG
Eisengasse 2
6440 Brunnen
043 355 55 55

Impressum